Aktuális kedvezmények:
-5% a REA termékekre (kedvezménykód: REA-5) -5% a konyhai mosogatóra és a kiegészítőkre Sink Quality és Gamma (kedvezménykód: SINK-5) -4% az ERGA fürdőszobai kiegészítőkre és termékekre (kedvezménykód: ERGA-4) -4% Novaservis és Ferro termékekre (kedvezménykód: NOVASERVIS-4) -3% a Aqualine termékekre (kedvezménykód: Aqualine-3)Sapho, VARIO WHITE egyrészes zuhanyparaván falra szereléshez, matt üveg, 1300 mm, GX1413GX1015
Kód: GX1413GX1015Kapcsolódó termékek
Termék részletes leírása
A VARIO bejáró képernyők kollekciója intelligens és rugalmas megoldást kínál az egyéni és térbeli elrendezéseknek megfelelően. Az üvegek, támasztékok és profilok moduláris rendszere lehetővé teszi a paravánok méreteinek, színeinek és formáinak átgondolt kombinációját - akár a falhoz, akár a térben. Az elegáns megjelenés a minimális fekete-matt, matt fehér, arany vagy krómozott komponensnek köszönhetően minden fürdőszobában megfelelő.
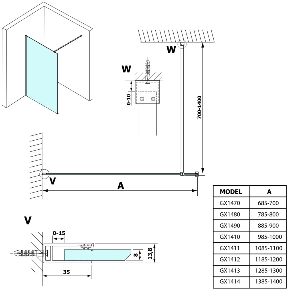
A VARIO sorozatú zuhanykabinok jellemzői
- Képernyők 700-1400 mm szélességben
- 8 mm vastagságú biztonsági üveg átlátszó/füstölt/matt közül választhat
- A Coated Glass felületkezelés megakadályozza a vízkőképződést és megkönnyíti a tisztítást
- A 15 mm-es tűréssel rendelkező falprofilok elősegítik a paravánok stabil beépítését, csempére vagy zuhanytálcára szerelhető
- Fali profil képernyők közül választhat: króm / fekete matt / fehér matt / arany
- 1400 mm hosszú, merőleges rugóstag króm / fekete matt / matt fehér / arany színben
- A függőleges merevítő a kívánt méretre rövidíthető
- 650 mm hosszú sarokmerevítő króm / fekete matt színben
- Változtatható kivitel bal/jobbra
- Magasság 2000 mm
Zuhanykabin összeállítás kombinációja:
Kiegészítő paraméterek
| Kategória: | WALK-IN zuhanyfalak |
|---|---|
| Jótállás: | 3 év |
| Súly: | 70 kg |
| EAN vonalkód: | 8590913944895 |
| Anyag: | edzett üveg |
| edzett üveg: | Igen |
| Forma: | Jednostenná pevná |
| Gyártó: | Gelco |
| Hosszúság: | 1300 |
| Magasság: | 2000 |
| prosil szín: | Biela matná |
| Sorozat: | Gelco VARIO |
| Szélesség: | 1300 |
| Szín: | fehér |
| Típus: | Sprchová zástena - 1-dielna nástenná s kolmou vzperou |
| Üveg színe: | Mliečne sklo |
| Üvegvastagság: | 8 mm |
| Magasság: | 2000 |
| Mélység: | 1300 |
| Csomagolás: | 2 |
| Forma: | Egyfalú, fix |
| Kitöltés típusa: | Matt üveg |
| Üveg felületkezelés: | Felületkezelt üveg |
| Üvegvastagság: | 8 |
| Profil színe: | Fehér |
| Garancia: | 3 év |
Beszélgetés
Legyen az első, aki véleményt ír ehhez a tételhez!




