Aktuális kedvezmények:
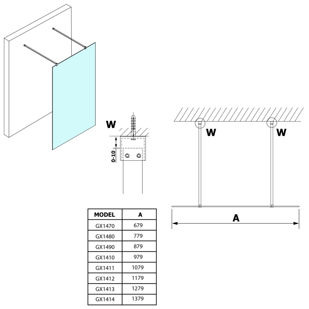
-5% a REA termékekre (kedvezménykód: REA-5) -5% a konyhai mosogatóra és a kiegészítőkre Sink Quality és Gamma (kedvezménykód: SINK-5) -4% az ERGA fürdőszobai kiegészítőkre és termékekre (kedvezménykód: ERGA-4) -4% Novaservis és Ferro termékekre (kedvezménykód: NOVASERVIS-4) -3% a Aqualine termékekre (kedvezménykód: Aqualine-3)Gelco, VARIO CHROME egyrészes térzuhany paraván, matt üveg, 1100 mm, GX1411GX2210
Kód: GX1411GX2210Kapcsolódó termékek
Termék részletes leírása
A VARIO bejáró képernyők kollekciója intelligens és rugalmas megoldást kínál az egyéni és térbeli elrendezéseknek megfelelően. Az üvegek, támasztékok és profilok moduláris rendszere lehetővé teszi a paravánok méreteinek, színeinek és formáinak átgondolt kombinációját - akár a falhoz, akár a térben. Az elegáns megjelenés a minimális króm, fekete matt, fehér matt, arany vagy arany matt komponensnek köszönhetően minden fürdőszobában megfelelő.
A VARIO sorozatú zuhanykabinok jellemzői
- Képernyők 700-1400 mm szélességben
- Biztonsági üveg 8 mm vastagsággal, választható átlátszó/füstölt/matt/nordic
- A bevont üveg bevonat megakadályozza a vízkőképződést és megkönnyíti a tisztítást
- A 15 mm-es tűréssel rendelkező falprofilok a paravánok stabil beépítését teszik lehetővé, csempére vagy zuhanytálcára szerelhető
- Választható fali profil képernyők: króm / fekete matt / fehér matt / arany / arany matrac
- 1400 mm hosszúságú merőleges rugóstag króm / fekete matt / matt fehér / arany / arany matt színben
- A függőleges merevítő a kívánt méretre rövidíthető
- 650 mm hosszú sarokmerevítő króm / fekete matt színben
- Lehetőség van egy fix kiegészítő panel hozzáadására 350 mm szélességű átlátszó üveg kivitelben és a profil színében króm / matt fekete
- Változtatható kivitel bal/jobbra
- Magasság 2000 mm
A zuhanysarok összeszerelésének kombinációja:
Kiegészítő paraméterek
| Kategória: | WALK-IN zuhanyfalak |
|---|---|
| Jótállás: | 3 év |
| Súly: | 58 kg |
| EAN vonalkód: | 8590913908910 |
| Anyag: | edzett üveg |
| edzett üveg: | Igen |
| Forma: | Jednostenná Walk |
| Gyártó: | Gelco |
| Magasság: | 2000 |
| prosil szín: | Chrómová |
| Sorozat: | Gelco VARIO |
| Szélesség: | 1100 |
| Szín: | Króm |
| Típus: | Sprchová zástena - 1-dielna priechodná s 2x kolmou vzperou |
| Üveg színe: | Mliečne sklo |
| Üvegvastagság: | 8 mm |
| típusok: | VARIO |
| Csomagolás: | 3 |
| Forma: | Egyfalú Walk |
| Kitöltés típusa: | Matt üveg |
| Üveg felületkezelés: | Felületkezelt üveg |
| Garancia: | 3 év |
| EAN: | 8590913908910 |
Beszélgetés
Legyen az első, aki véleményt ír ehhez a tételhez!




